Mack Hall Real Estate

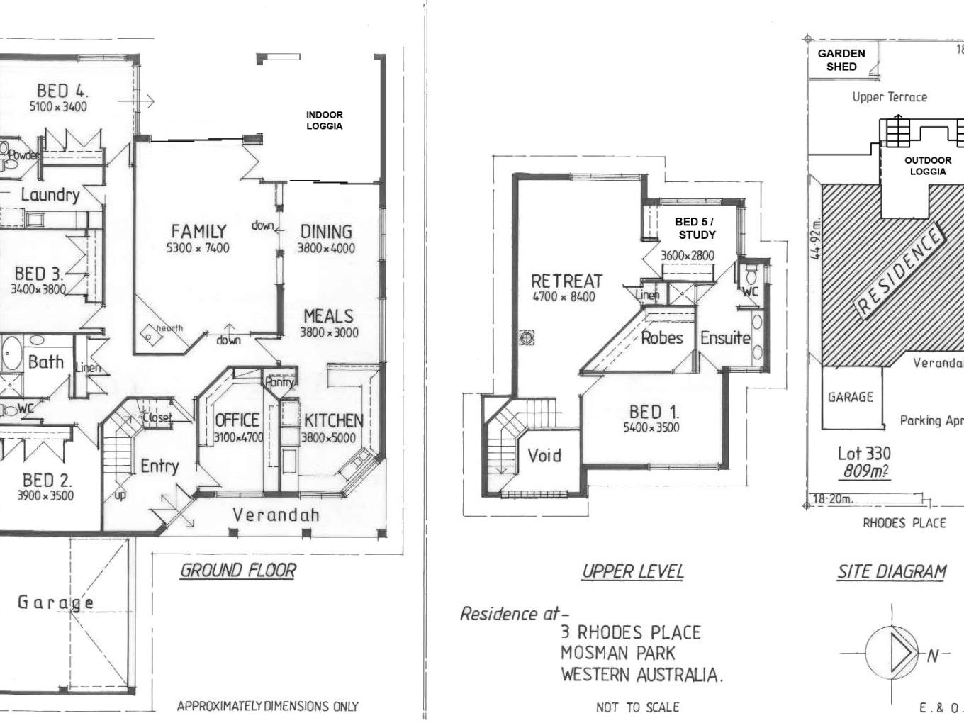
Floorplan


Property for sale in Mosman Park